Salisbury Road, Carshalton

6 2 4

Offers In Excess Of, £980,000 (Freehold)

For Sale



Key Features

  • NO ONWARD CHAIN
  • Six bedrooms
  • Four bathrooms
  • Semi-detached
  • Off-street parking
  • Close to local amenities
View EPC
Share this property:

Property Description

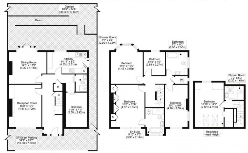
Offered with NO ONWARD CHAIN An exceptional opportunity to acquire this substantial six-bedroom, four-bathroom semi-detached family home, offering expansive living space across multiple floors, ideal for large or growing families, multi-generational households, or those seeking flexible accommodation with work-from-home potential.

Beautifully presented and thoughtfully extended, this impressive home combines classic character with modern convenience. From the moment you step inside, you're welcomed by a spacious entrance hall that leads to a generous formal living room with a feature fireplace, custom cabinetry and a large window, creating a bright and elegant space to relax or entertain. To the rear, there is a generously sized separate dining room with patio doors leading on to a large decking area, ideal for family meals, dinner parties, or indoor-outdoor living. The kitchen is a bright and functional space, complete with ample work surfaces, modern cabinetry, and integrated appliances, with plenty of room for a breakfast table and direct access to the rear garden. A versatile double bedroom on the ground floor, paired with a nearby bathroom, makes this home ideal for multigenerational families, study space, or older children seeking greater independence. Across the upper floors are five well-proportioned bedrooms, including a luxurious master bedroom with custom cabinetry providing extensive wardrobe and storage space, and its own en-suite bathroom featuring a nickel and copper bath. A further three particularly good-sized doubles, offer space for larger beds, wardrobes, or desk areas. The top floor is a standout feature of the home, hosting a large double bedroom with an en-suite shower room. This private retreat is ideal for older children or guests, offering privacy and space for a seating area and study zone. The property further benefits from heated floor and electronic temperature controls in the bathrooms, and plans drawn up for a rear extension (STPP).