Woodcote Road, Purley

4 2 1

Guide Price, £800,000 (Freehold)

For Sale



View EPC
Share this property:

Property Description

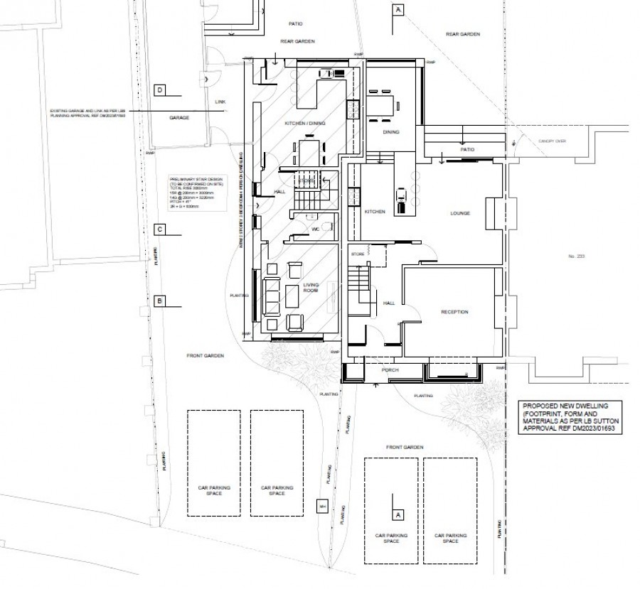
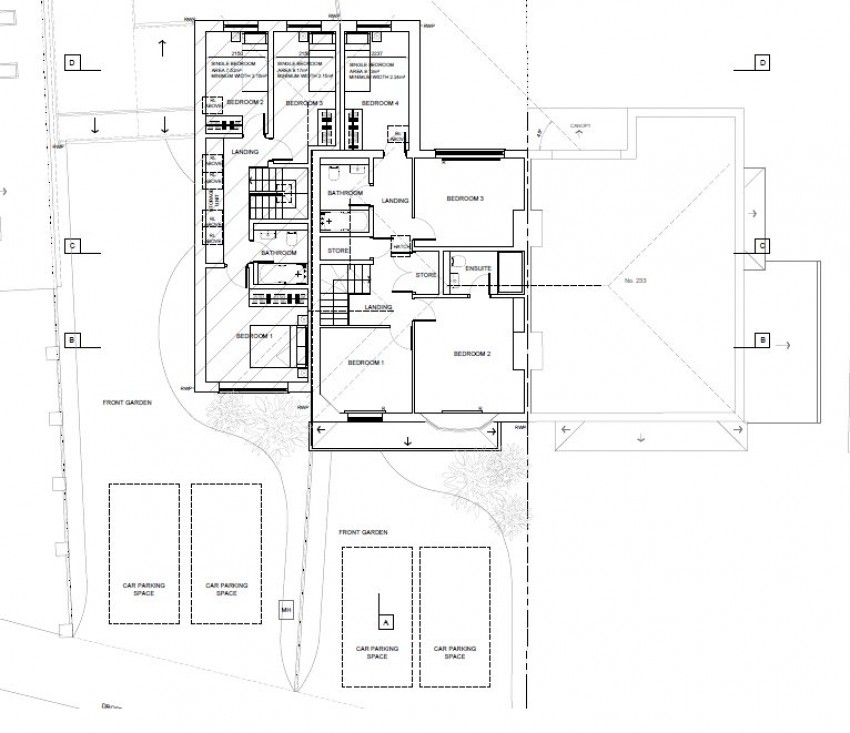
This four-bedroom semi-detached family home offers generous living space and exciting potential for further enhancement.

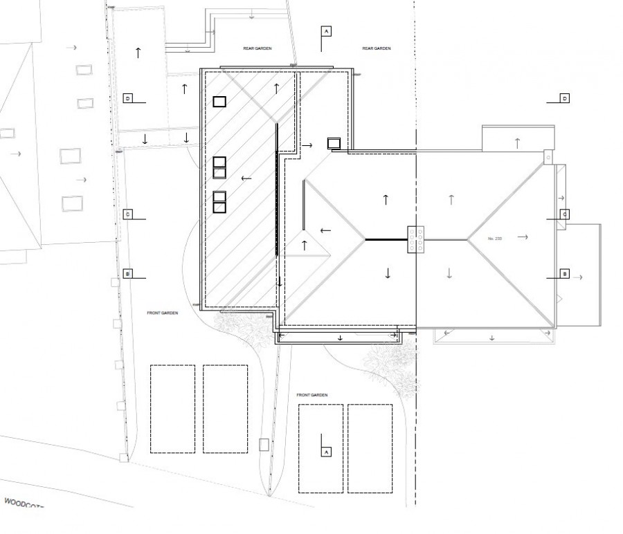
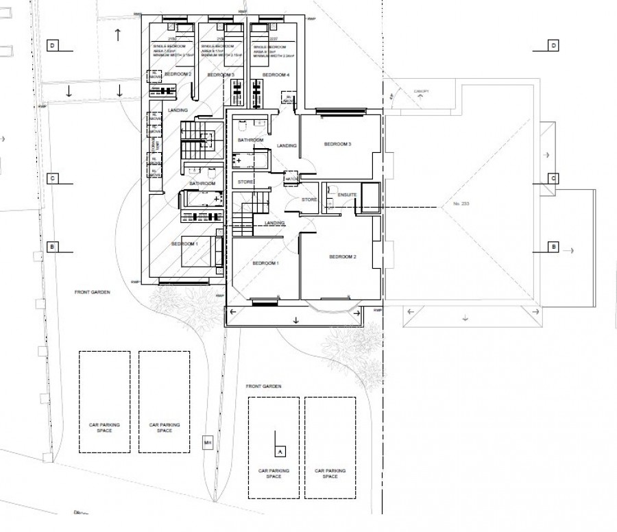
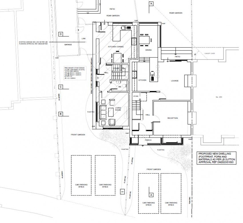
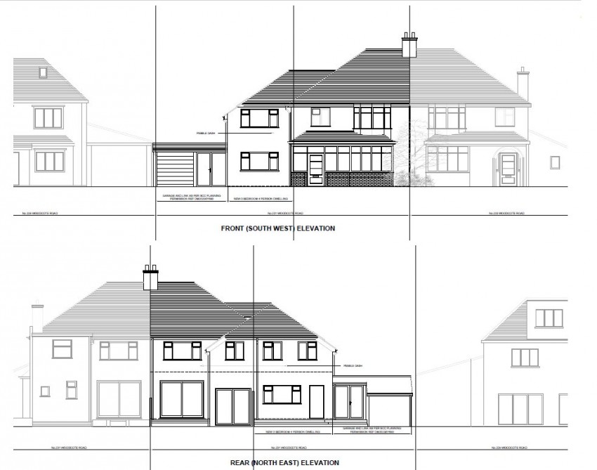
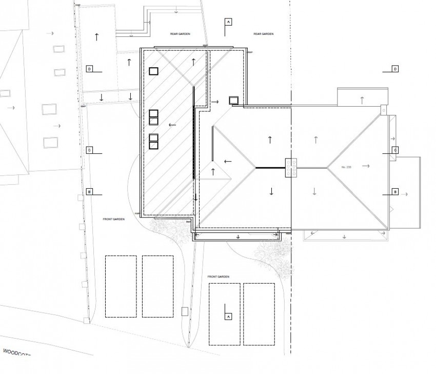
The property comes with Planning Approval to extend the property to the left for two separate uses, either: • DM2024/00602 (Sutton Council Ref) – to construct a new separate two-storey three-bedroom dwelling or • DM2023/01693 – as extra space for the main house (currently two garage spaces downstairs and extra bedroom and large study upstairs both of which could be reconfigured as required) The property currently comprises of an enclosed porch and hallway, two spacious reception rooms, a kitchen/breakfast room that leads out to the garden and comes with a separate larder. On the first floor, there are four good sized bedrooms, a bathroom with separate toilet and access into the loft. Outside, the property benefits from a private driveway, side access, a detached garage and a generous rear garden with mature trees and lawn. Located within easy reach of Purley & Wallington town centres, convenient links into London via several bus routes and train services and a choice of highly regarded schools including Woodcote Primary and High School, John Fisher and Wallington Girls.